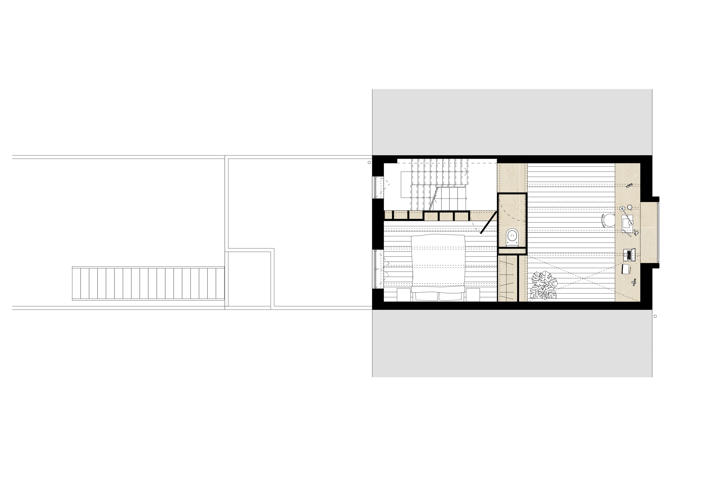
Roof extension, Ghent

Completed






studio MOTO 2026 — Ghent, Belgium