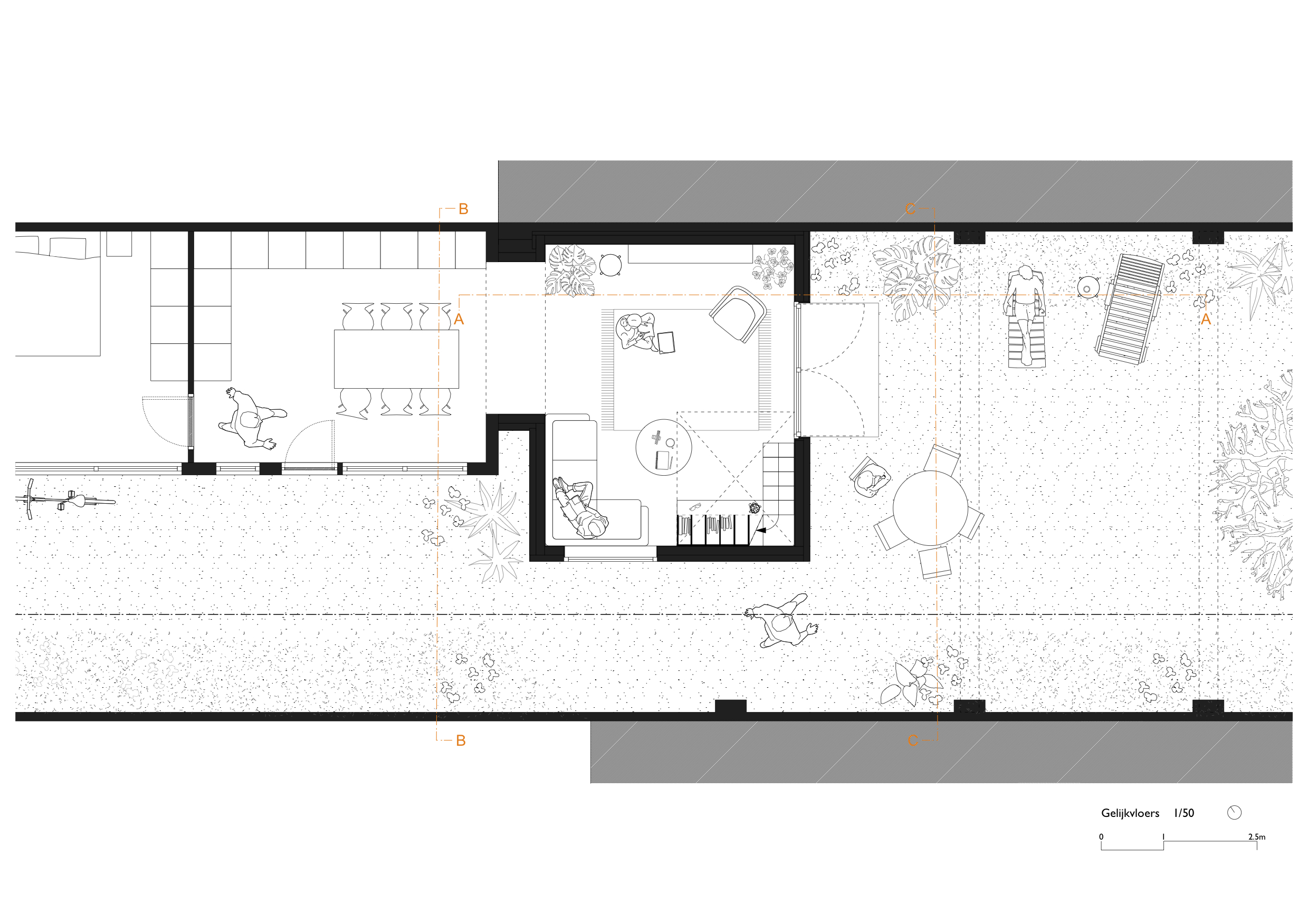
Courtyard pavillion, Ledeberg

Completed








studio MOTO 2026 — Ghent, Belgium