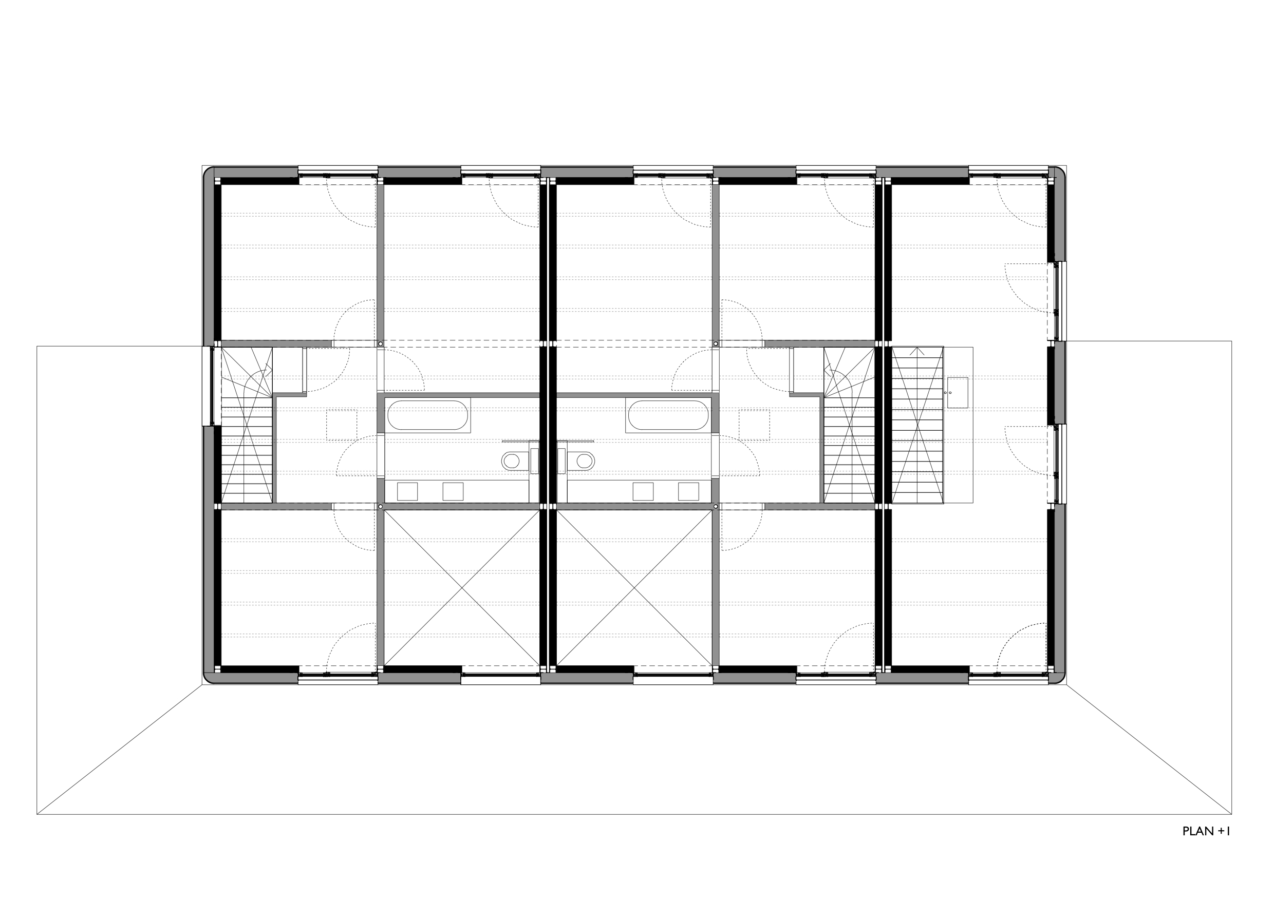
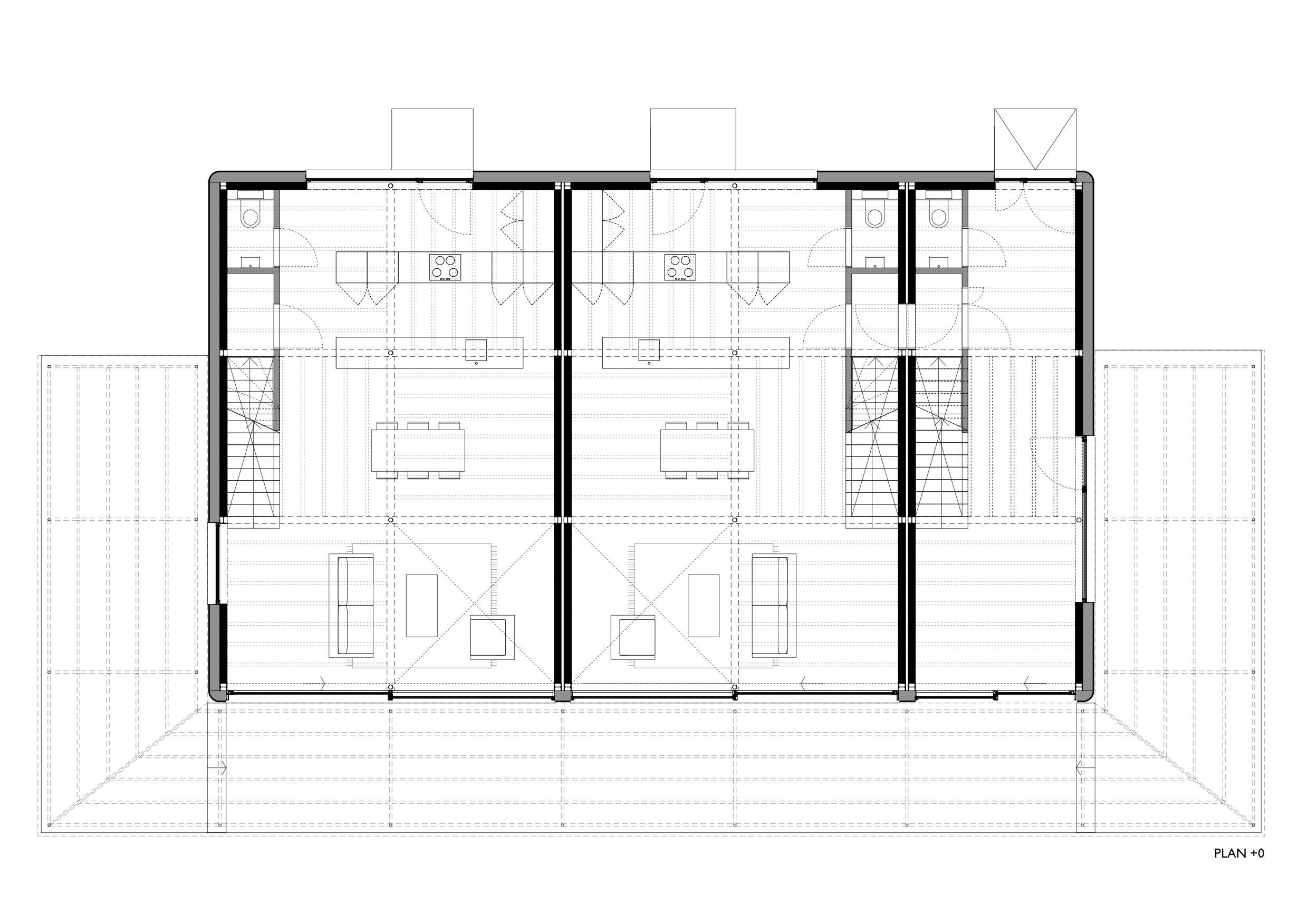
House + Workshop, Varsenare
Completed

New building on two levelsusing a prefabricated modular construction system. 
The programme consists of accommodating two dwellings with a shared workshop area.

Photos ©Stijn Bollaert






studio MOTO 2026 — Ghent, Belgium