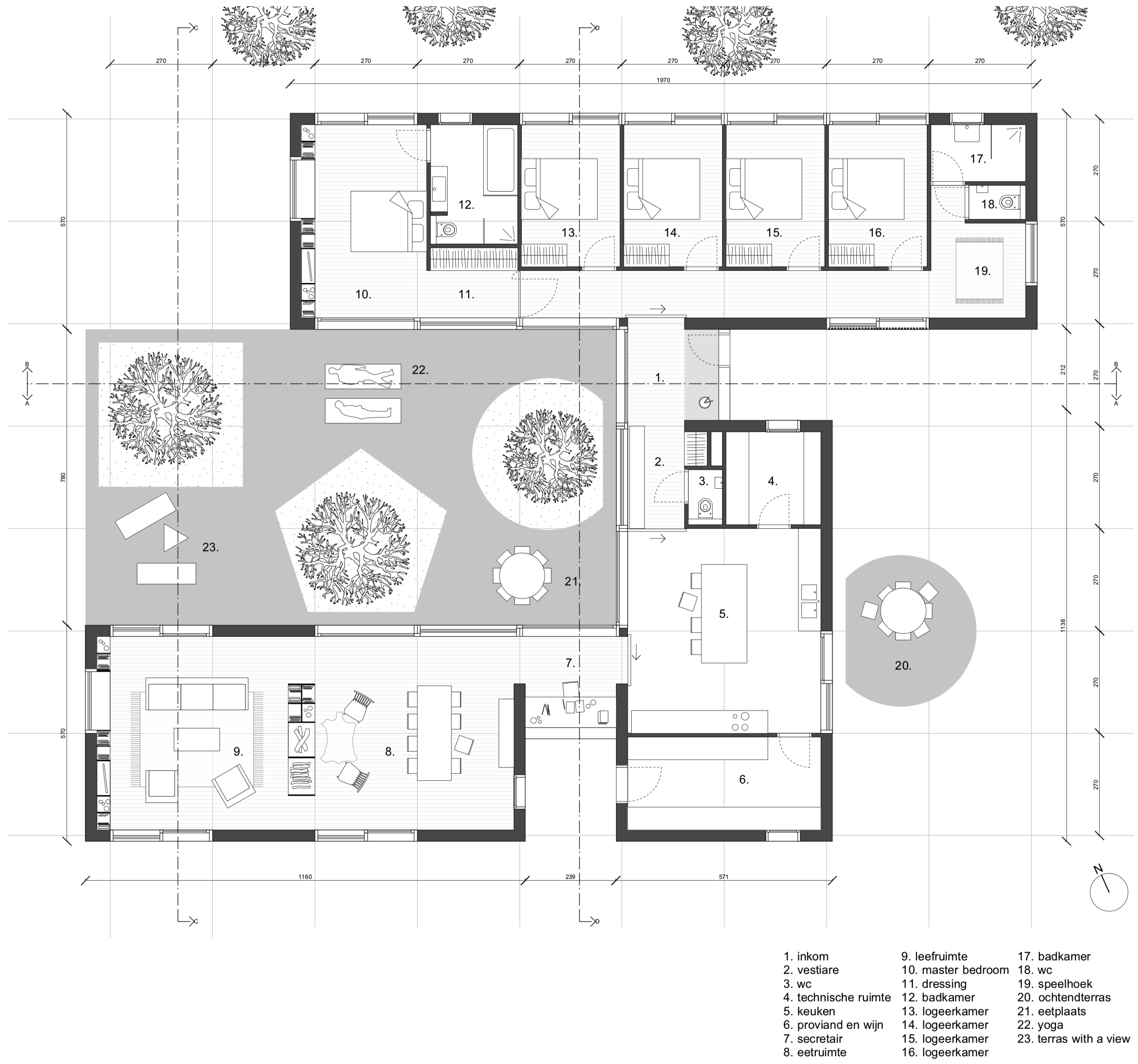
Holiday house #2

Proposal










studio MOTO 2026 — Ghent, Belgium