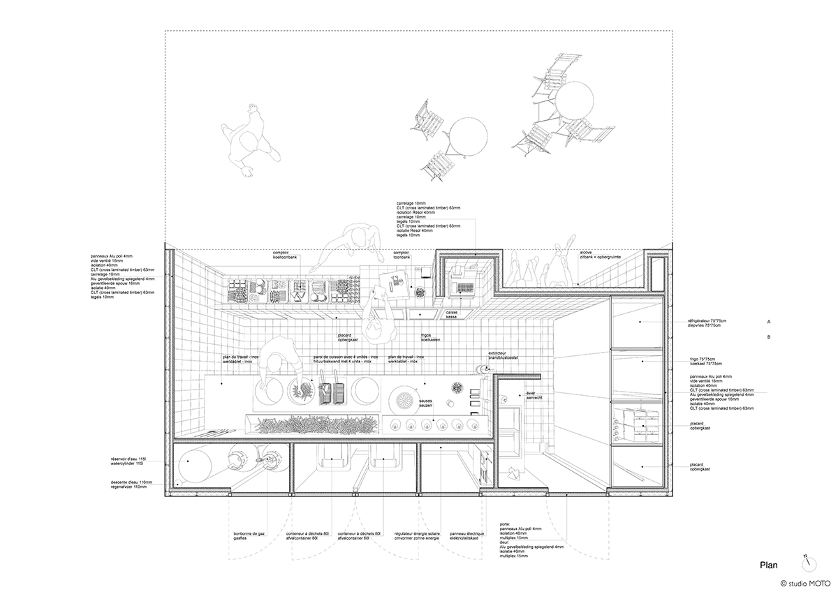
Frietkot, Brussels

Completed

Competition, 1st prize






studio MOTO 2026 — Ghent, Belgium